Trilocale in vendita

Cerveteri, Via Viterbo - Cerenova
€ 89.000
3 locali 3 locali
41 Mq 41 Mq
1 bagno 1 bagno

Trilocale in vendita

Cerveteri, Via Viterbo - Cerenova

Descrizione annuncio

VENDUTO
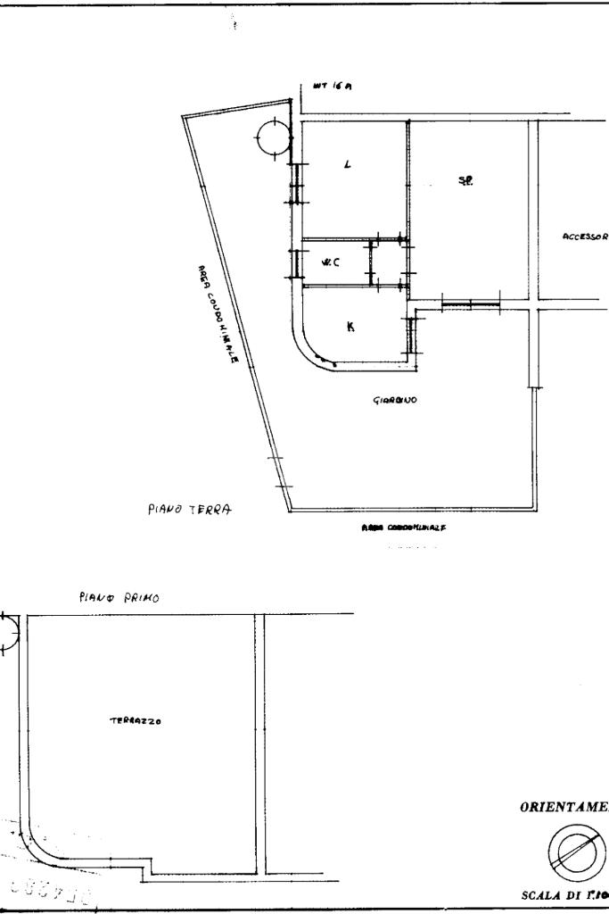
Ingresso indipendente con giardino e terrazzo

A Cerenova, in contesto tranquillo e a breve distanza dai principali servizi e dal mare, proponiamo in vendita un appartamento con Ingresso indipendente dove ci accoglie un giardino di circa 60 mq, uno spazio esterno vivibile e riservato, ideale per vivere la casa anche all’aperto.

L’abitazione, di circa 40 mq calpestabili, si compone di cucina, salone, camera e bagno. Tutti gli ambienti hanno accesso all’esterno, creando continuità tra interno ed esterno e rendendo gli spazi funzionali e ben distribuiti.

Tramite scala a chiocciola si raggiunge inoltre il terrazzo praticabile, un ulteriore spazio da poter attrezzare secondo le proprie esigenze.

L’immobile necessita di interventi di ristrutturazione, anche a causa di infiltrazioni provenienti dal terrazzo. Proprio per questo motivo la richiesta economica tiene già conto dei lavori da eseguire, offrendo la possibilità di acquistare ad un prezzo competitivo e personalizzare completamente gli ambienti, valorizzando al massimo il potenziale della soluzione.

Una proposta interessante per chi cerca ingresso indipendente e spazi esterni, con la possibilità di creare una casa su misura.

Contattaci per saperne di più e visionare di persona la proprietà.

Mostra tutto

Nelle vicinanze

Trasporto pubblico Trasporto pubblico
stazione di Marina di Cerveteri
stazione di Marina di Cerveteri
1,1 Km
CERENOVA incrocio Via Fontana Morella
CERENOVA incrocio Via Fontana Morella
460 m
Cerenova incrocio via Fontana Morella
Cerenova incrocio via Fontana Morella
540 m
Scuole Scuole
Scuole
310 m
Istituto Comprensivo Statale Marina di Cerveteri
1,5 Km
Scuola d'Infanzia Marina di Cerveteri
1,6 Km
Via Fratelli Bandiera
1,7 Km
Liceo Pertini Succursale
1,8 Km
Farmacia Farmacia
Farmacia Comunale 2
980 m
Farmacia Comunale
2,5 Km
Farmacia Firenze
2,9 Km
Farmacia Comunale 5
3,0 Km
Ospedali Ospedali
Posto di Primo Soccorso
1,9 Km
Supermercati Supermercati
EuroSpin
620 m
Coop
620 m
Todis
1,1 Km
Carrefour Express
1,3 Km
Pam
1,6 Km
Negozi Negozi
Panificio Arte e Farina
590 m
Pane e Dolci di Pescetto
2,5 Km
Body Chic
2,5 Km
Negozi
2,5 Km
Bar Bar
Bar
280 m
Bar Tirreno
650 m
Bar Cesare
730 m
Bar Il Pozzo
740 m
Il Ghiottone
950 m
Ristoranti Ristoranti
Ristorante Oceano D'oro
630 m
Ristorante Pizzeria Miele e Peperoncino
640 m
Ristorante Agriturismo Torre Flavia
1,3 Km
Il Tegame
1,3 Km
Zelio Beach
1,9 Km
Mostra tutto

Caratteristiche

Rif.:
61178004
Piano:
Terra con giardino di 1
Totale piani:
1
Terrazzi:
1
Camere da letto:
1
Arredamento:
Parziale
Mostra tutto
Prezzo Prezzo
€ 89.000
Rata mutuo Rata mutuo
€ 423 / mese
Spese annue Spese annue
€ 0
Proponi il tuo prezzoProponi il tuo prezzo

Classe Energetica

Questo immobile è esente da classe energetica
Anno di costruzione:
1970
Riscaldamento:
Assente

Ti interessa visionare l'immobile?

Fissa un appuntamento  Fissa un appuntamento

Richiedi informazioni

Clicca su Leggi per aprire l'informativa
* Questi campi sono obbligatori

Calcola il tuo mutuo

Semplice e senza impegno
Anticipo

( % )
Mutuo

( % )

pochi semplici passi

inserisci i tuoi dati
Questionario completato
Grazie per aver richiesto un appuntamento senza impegno con un nostro Consulente del Credito e Assicurativo.

Hai inserito correttamente tutti i dati necessari e a breve riceverai una e-mail con un link da convalidare per inviare i tuoi dati.
Affiliato
Immobiliare Cerveteri 4 Srl
P.zza Morbidelli, 21/B 00052 Cerveteri (RM)

Il nostro staff


  • Georgiana Gabinat
    Collaboratrice

  • Federica Giorgi
    Coordinatrice

  • Matteo Saraconi
    Affiliato

  • Lorenzo Sordini
    Collaboratore

  • Danilo Gianni
    Affiliato
P.zza Morbidelli, 21/B 00052 Cerveteri (RM)
Zona: Cerveteri
Mostra su mappa
Orari: Dal Lunedì al Venerdì: 9:00 - 13:00/15:30 - 19:00 Sabato: 9:30 - 13:00/14:00 - 18:00
Affiliato
Immobiliare Cerveteri 4 Srl
P.zza Morbidelli, 21/B 00052 Cerveteri (RM)

2026 Tecnocasa Franchising S.p.A. - P. IVA 08365160152 - Via Monte Bianco 60/A 20089 Rozzano (MI). Ogni agenzia ha un proprio titolare ed è autonoma. Privacy policy | Policy utilizzo | Cookie policy